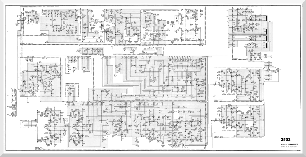
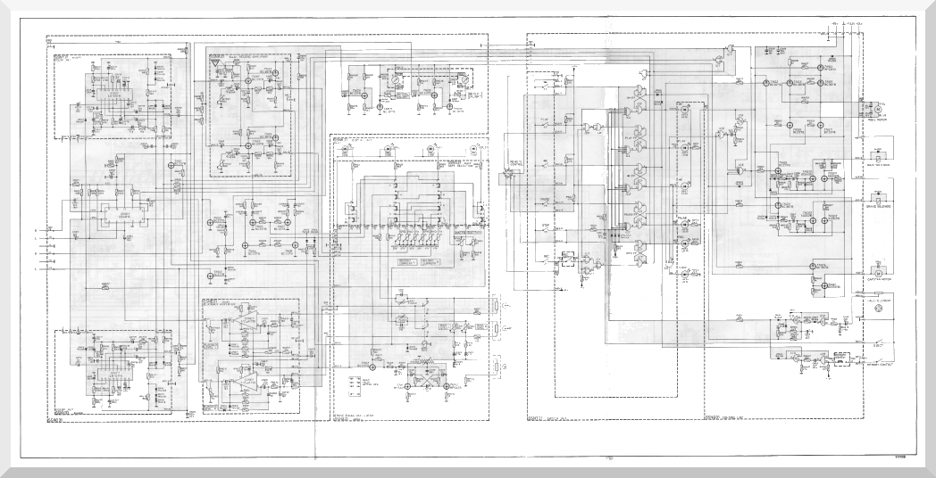
SALORA HIFI STEREO 6600S KYTKENTÄKAAVIOT

VAHVISTIMET JA VIRITTIMET

NAUHURI